Well-presented and spacious four-bedroom end terraced villa, with driveway, timber garage and beautiful mature garden to rear. This charming property is located in a sought-after area of Auchtermuchty and within walking distance to local amenities including local primary school.
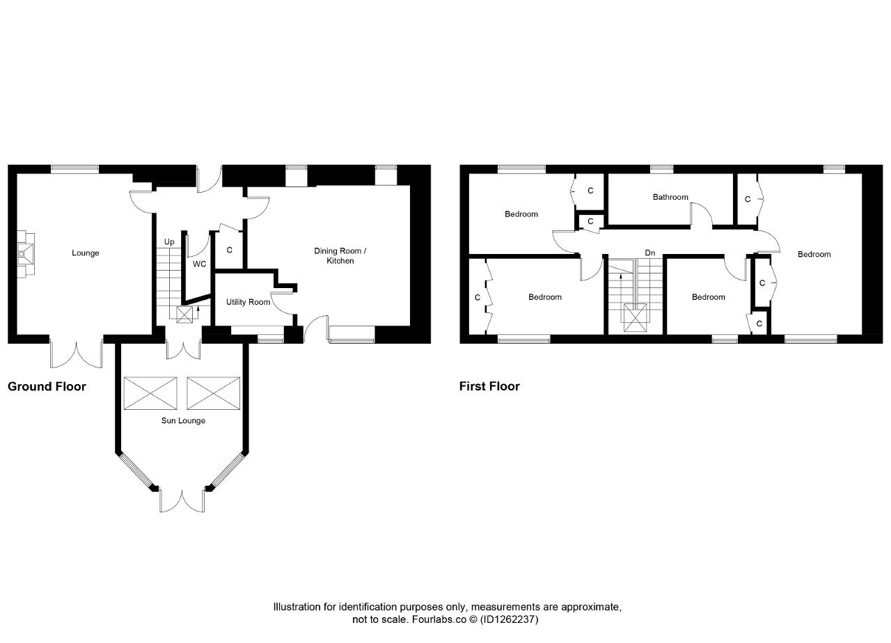
Entrance is gained into a carpeted hallway which provides access to the lounge, dining kitchen, WC and a staircase leads to the mezzanine and upper floor accommodation. Within the hall there is a cupboard offering storage and a separate cupboard housing the electric meter.
Well-proportioned lounge with feature multi fuel burning stove and fire surround adding charm to the lounge. French doors open onto the rear garden area and a window to front offering additional natural light. Fitted bookshelf. Fitted Carpet.
Spacious dining/family kitchen with fitted floor mounted units and ample worktop surfaces, with breakfast bar area for the preparation of meals. Partial tiling to one wall. Free standing five ring gas Rangemaster cooker. Fitted display shelving. Sink and drainer positioned in front of window overlooking the rear. Generous space for dining table and chairs. Vinyl flooring, two windows to front. A door opens onto the laundry room.
The laundry room includes space and plumbing for washing machine and dryer. Fitted worktop and shelving. Ample space for further kitchen appliances if required. Window overlooking the rear garden area. Tiled floor.
Wc includes wc and wash basin vanity unit. Attractively decorated with combination of partially tiled walls and wallpaper. Tiled floor. Under stairs storage cupboard.
Carpeted staircase leads to a mezzanine level and upper floor landing. Velux window providing natural light.
Mezzanine level sunroom offers space for a mixture of purposes including dining or work from home area. Glazed panel doors open to a decking entrance area and steps to the rear garden. Windows to side of glazed door and Velux window provide natural light. Laminate flooring.
The carpeted upper floor landing offers access to four bedrooms and bath/shower room. Cupboard offering storage, Hatch with Ramsay ladder opens onto the partially floored loft area. Boiler located in loft.
Generous sized master bedroom offers ample space for king size bed and freestanding furniture. Fitted wardrobes and cupboard housing the water tank. Windows to front overlooking the Calsey Burn and window to rear overlooking garden area. Fitted Carpet.
Bedroom two is located to the front of the property and offers space for double bed and free-standing furniture. Fitted wardrobe and bookshelf. Carpet to floor. Window overlooking Calsey burn.
Bedroom three benefits with a window overlooking the rear garden area. Ample space for double bed and free-standing furniture. Fitted wardrobes. Fitted carpet.
Bedroom four is presently being utilised as a dressing room however, this room can accommodate a double bed if this was your preference. Fitted cupboard. Fitted carpet.
Spacious bathroom includes a wc, wash basin vanity unit, bath and a double shower cubicle with sliding door, wet wall panelling to three walls, thermostatic shower and concealed controls. Fitted bathroom mirror. Partial wet wall panelling to walls. Towel style radiator. Glazed window to front offering natural light and ventilation. Vinyl flooring.
The property benefits from a mixture of triple and double-glazed windows. Gas central heating.
Externally to the side there is a gate which provides access to the driveway, garage and rear garden.
The rear garden is beautiful and includes pathways, a lawn, drying and shrub areas. A mixture of cooking apple, plum, cherry, pear and apple trees. Large timber pond below a pergola. Garden store. Three greenhouses. A gate allows neighbour bin access through rear garden.
EPC - D
Council Tax- E
Viewings Strictly by appointment
360 Video walk through & Home Report available on request.
Auchtermuchty offers primary schooling, GP health centre, dentist, chemist, post office, convenience store, Co-op, restaurant, motor engineers, Tyre shop, bowling club, hairdressers, barber, dog grooming salon, takeaway, antique shop and eatery. Various walks can be found in and around Auchtermuchty.
The village is ideally situated for travel to Perth, Newburgh, St. Andrews, Cupar, Glenrothes, Kirkcaldy and Dundee via road networks. Glasgow and Edinburgh are approximately one hours drive away, and Stirling is approximately 50 minutes" drive away. There are train Stations in Ladybank and Cupar.
15' 0'' x 17' 11'' (4.58m x 5.48m)
17' 1'' x 18' 2'' (5.24m x 5.55m)
8' 9'' x 7' 3'' (2.69m x 2.21m)
7' 7'' x 2' 8'' (2.33m x 0.82m)
15' 7'' x 13' 7'' (4.76m x 4.16m)
18' 2'' x 11' 7'' (5.55m x 3.56m)
9' 4'' x 11' 8'' (2.87m x 3.58m)
13' 0'' x 8' 8'' (3.97m x 2.66m)
9' 3'' x 8' 5'' (2.85m x 2.57m)
5' 8'' x 14' 0'' (1.75m x 4.27m)
For further information on this property please call 07938 566969 or e-mail info@harleyestateagents.co.uk
MONEY LAUNDERING REGULATIONS: Intending purchasers and sellers will be asked to produce identification documentation and proof of funds via a system we pay for known as Credas (https://credas.com) Certified Digital Identity Verification Service, which is certified against the UK Government Digital Identity and Attributes Trust Framework. Via Credas we will request that you provide relevant information to allow various checks including digital identity verification. Information required from yourself for an Identity Report includes your first and last name, address and date of birth and Credas system will carry out the relevant checks/verification. Also, a photographic Identity Verification Report, which will require you to provide a current passport, driving licence or national identity card and a selfie in order to carry out a biometric analysis for verification. Along with relevant information from buyers to allow for proof of funds report. We would ask for your co-operation in order that there will be no delays.
We endeavour to provide accurate particulars from information provided by the vendor and the information provided in this brochure is believed to be correct, however, the accuracy cannot be guaranteed, they are set as a general outline only and they do not form part of any contract. All measurements, distances, floor plans and areas are approximate and for guidelines only. Whilst every attempt is made to ensure the accuracy of any floor plan, measurements of doors, windows, rooms and any other items are approximate and no responsibility is taken for any error, omission, or misstatement. The floor plan is for illustrative purposes only and should be used as such by any prospective purchaser. Any fixture, fittings mentioned in these particulars will be confirmed by the vendor if they are included in the sale or not. Please note that appliances, heating systems, services, equipment, fixtures etc have not been tested and no warranty is given or implied that these are in working order. Photographs are reproduced for general information and not be inferred that any item is included for sale with the property.



