Well presented, extended semi-detached four-bedroom house with a generous sized rear garden and a gravel area to front. Partial view between buildings and over roof tops to East Lomond Hill. A fabulous family home offering versatile accommodation and within walking distance of local amenities.
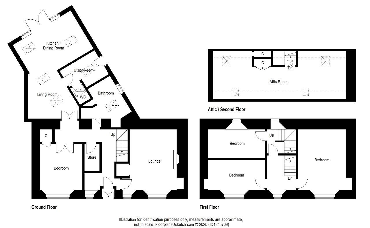
Entry is gained via storm door entrance vestibule with a door opening onto the hallway. The hallway offers access to the lounge, bath/shower room, bedroom and family/dining kitchen. Window to front. Carpeted staircase leads to the upper floor bedrooms. Within the hallway there is a generous sized walk-in cupboard ideal for storage of outdoor clothing and footwear, however, it may be suitable for a work from home space if this is your preference.
Delightful lounge with feature living flame gas fire, fire surround with hearth and decorative side inserts. Display area with cupboard below. Two windows to front. Fitted carpet.
The family dining kitchen is generous in size offering areas for the family to relax and dine. Four Velux windows and French doors to the garden area, allow for an abundance of natural light. The kitchen area is fitted with wall and floor mounted units. Free standing Rangemaster gas cooker with double oven and five ring gas hob. Extractor fan. Ample worktop surfaces. Sink and drainer. Splash back tiling. Vinyl flooring. A door opens onto utility room.
Utility room provides ample space for laundry duties with worktops, sink and drainer, space and plumbing for washing machine and dryer. Fitted wall and floor mounted units. Vinyl flooring. Velux window. A door opens to the side pathway leading to the rear garden. Gas boiler in situ. A door opens onto the WC.
The WC includes WC, splash back tilling and glass display shelf above wash hand basin. Velux window. Tiled flooring.
Bedroom four is located to the front of the property and offers space for a king-size bed and free-standing furniture. However, this room could be utilised as a dining/family room if this is your preference. Window to front. Walk in cupboard fitted with shelf and hanging rail. Recently fitted new carpet.
Spacious bath/shower room includes wc, wash hand basin, free standing bath, walk in shower cubicle with fixed curved screen, a side screen, thermostat shower and concealed controls. Window offering natural light and ventilation. Part tiling to walls and wet wall panelling to shower area. Fitted mirror. Open storage area. Skylight window. Display shelving, towel style radiator and tiled flooring.
Staircase from hallway leads to the carpeted upper landing, which provides access to two bedrooms, a door leading to a further bedroom and a stair to the attic space. Window to front.
Well-proportioned master bedroom offering generous space for king-size bed and free-standing furniture. Window to front. Shelving area. Original floor.
Spacious second bedroom with space for double bed and free-standing furniture. Shelved display area. Window to front offering partial view over roof tops towards to Falkland Hill.. Fitted carpet.
Bedroom three is located to the rear of the property and offers space for a double bed and free-standing furniture. Laminate fitted flooring. Window with deep windowsill. Feature wallpaper to one wall.
The attic space is fitted with a carpet and skylight windows offer natural light. Cupboard with shelf and hanging rail. Power and light.
Gas central heating and a mixture of double/triple glazing.
Externally to the rear there is a beautiful rear garden with patio area offering space for alfresco dining, steps lead up to further patio area with shrub areas to side, lawn area with apple tree and large garden shed. A gate and pathway lead to walkway shared with the next-door neighbour, to the front of property.
To the front you will find a gravel area.
EPC - D
Council Tax - D
Viewings Strictly by appointment
360 Video walk through & Home Report available on request.
Auchtermuchty offers primary schooling, GP health centre, dentist, chemist, post office, convenience store, Co-op, restaurant, motor engineers, Tyre shop, bowling club, hairdressers, barber, dog grooming salon and takeaway. Various walks can be found in and around Auchtermuchty.
The village is ideally situated for travel to Perth, Newburgh, St. Andrews, Cupar, Glenrothes, Kirkcaldy and Dundee via road networks. Glasgow and Edinburgh are approximately one hours drive away, and Stirling is approximately 50 minutes' drive away. There are train Stations in Ladybank and Cupar.
15' 8'' x 11' 10'' (4.78m x 3.62m)
6' 11'' x 3' 9'' (2.12m x 1.17m)
17' 4'' x 23' 11'' (5.3m x 7.3m)
10' 4'' x 7' 3'' (3.16m x 2.23m)
4' 9'' x 3' 4'' (1.48m x 1.03m)
10' 11'' x 12' 6'' (3.33m x 3.83m)
13' 1'' x 12' 0'' (4.02m x 3.67m)
15' 9'' x 12' 5'' (4.81m x 3.8m)
14' 6'' x 7' 9'' (4.42m x 2.38m)
7' 7'' x 14' 10'' (2.34m x 4.53m)
34' 3'' x 8' 11'' (10.45m x 2.72m)
For further information on this property please call 07938 566969 or e-mail info@harleyestateagents.co.uk
MONEY LAUNDERING REGULATIONS: Intending purchasers and sellers will be asked to produce identification documentation and proof of funds via a system we pay for known as Credas (https://credas.com) Certified Digital Identity Verification Service, which is certified against the UK Government Digital Identity and Attributes Trust Framework. Via Credas we will request that you provide relevant information to allow various checks including digital identity verification. Information required from yourself for an Identity Report includes your first and last name, address and date of birth and Credas system will carry out the relevant checks/verification. Also, a photographic Identity Verification Report, which will require you to provide a current passport, driving licence or national identity card and a selfie in order to carry out a biometric analysis for verification. Along with relevant information from buyers to allow for proof of funds report. We would ask for your co-operation in order that there will be no delays.
We endeavour to provide accurate particulars from information provided by the vendor and the information provided in this brochure is believed to be correct, however, the accuracy cannot be guaranteed, they are set as a general outline only and they do not form part of any contract. All measurements, distances, floor plans and areas are approximate and for guidelines only. Whilst every attempt is made to ensure the accuracy of any floor plan, measurements of doors, windows, rooms and any other items are approximate and no responsibility is taken for any error, omission, or misstatement. The floor plan is for illustrative purposes only and should be used as such by any prospective purchaser. Any fixture, fittings mentioned in these particulars will be confirmed by the vendor if they are included in the sale or not. Please note that appliances, heating systems, services, equipment, fixtures etc have not been tested and no warranty is given or implied that these are in working order. Photographs are reproduced for general information and not be inferred that any item is included for sale with the property.



